wie
verantwortung
bedürfnis
aufgabe
wer
mitarbeiter
kontakt
formular
was
projekte
publikationen
projekte
publikationen
aktuell
links
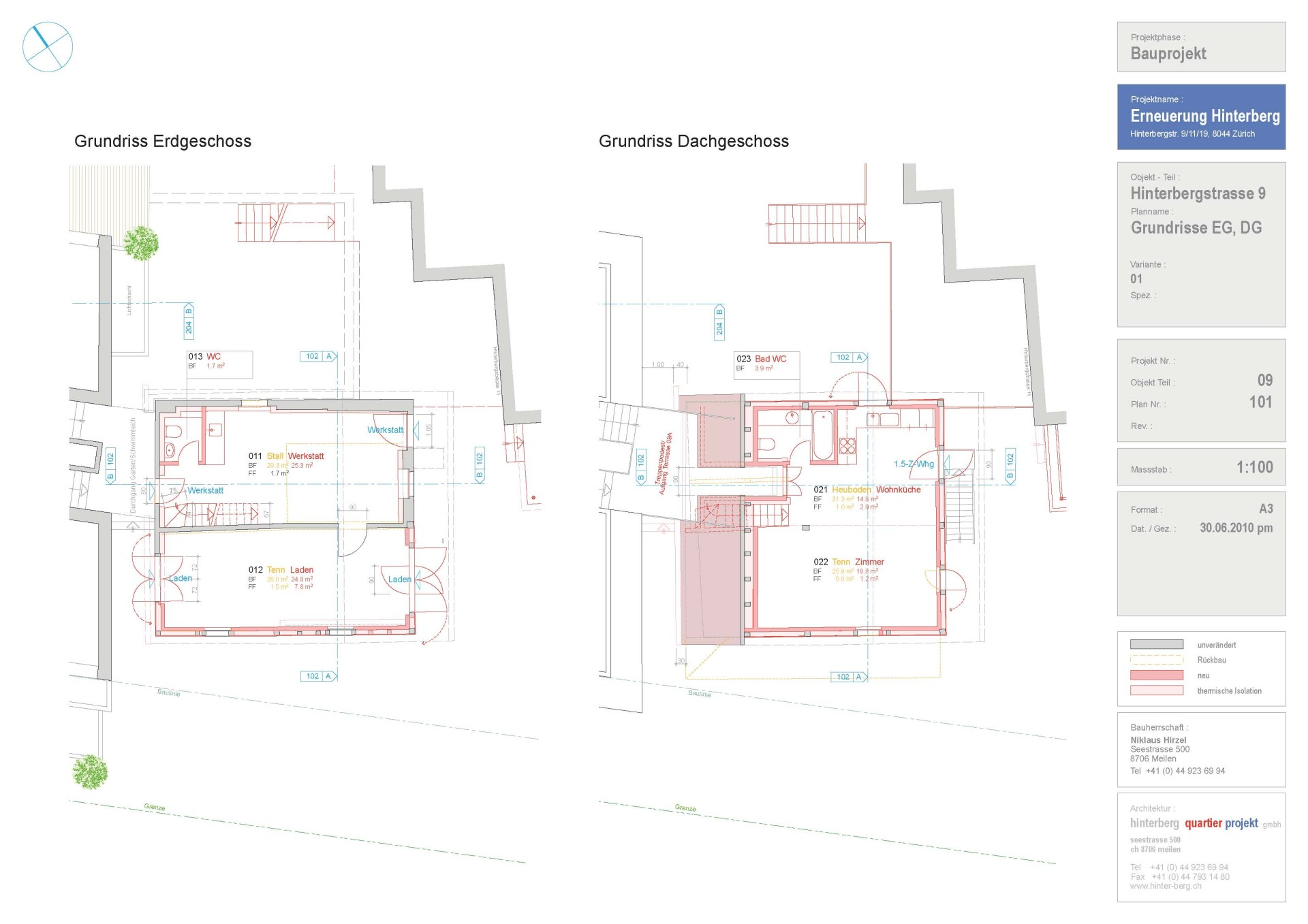
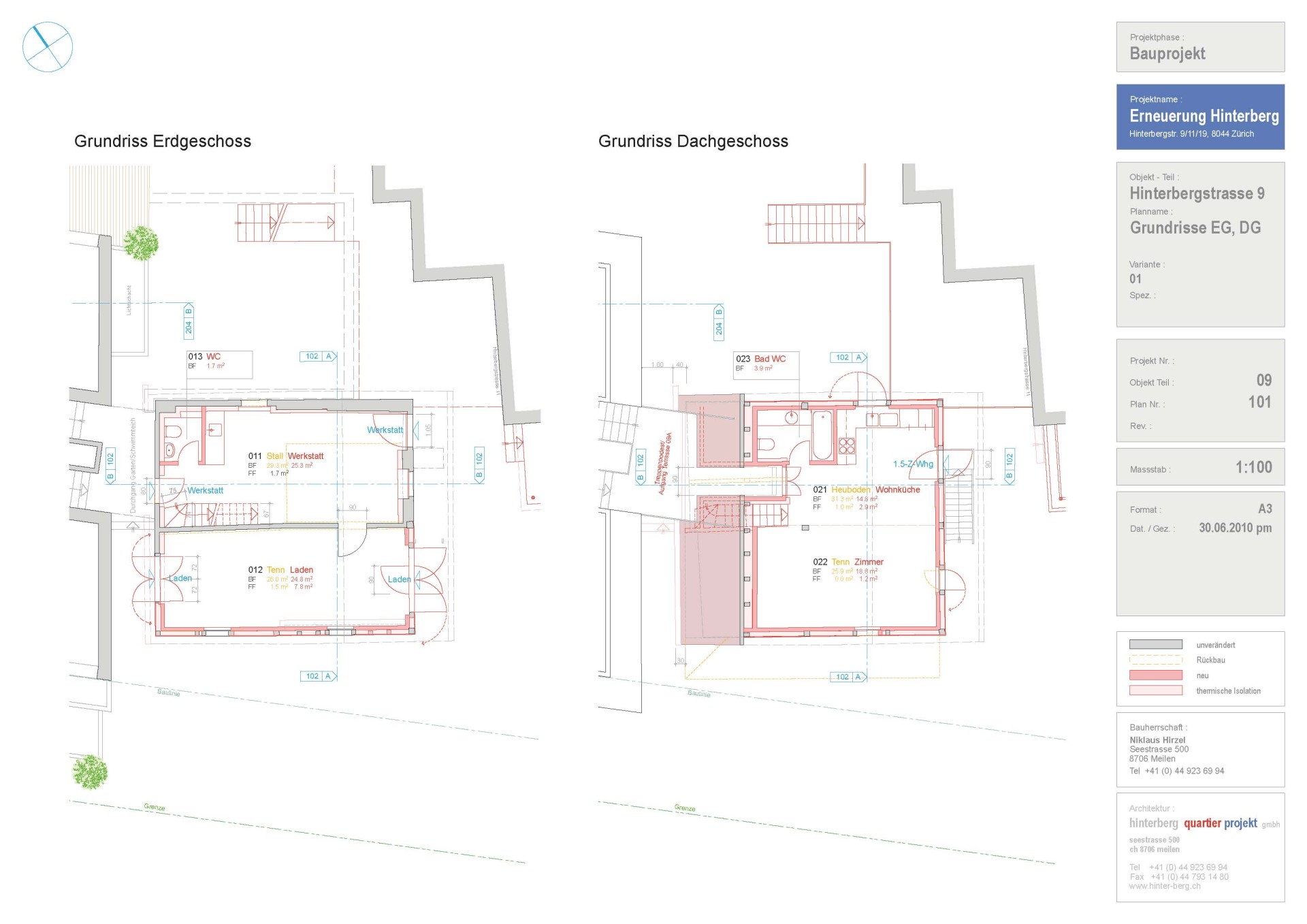
hinterbergstrasse
9/11/19
projektpläne
hinterbergstrasse
skizze
1
2
3
4
5
6
7
8
9
10
11
12
13
14
15
16
17
18
19
20
21
22
seestrasse
500
8706
meilen
+41-(0)44-923 69 94